|
|
|
|
|
|
Главная >Продукция >TZN3-24
|
|
|
|
|
|
TZN3-24 вакуумный выключатель
|
|
|
Общие сведения
Вакуумные включатели среднего напряжения внутренней установки серии TZN3-24 , с моторо- пружинным приводом используются в закрытых распределительных устройствах 12 кВ, промышленной частоты 50 (60) Гц.
Вакуумный выключатель среднего напряжения со литым полюсом серии TZN3-24 может использоваться в распределительных сетях, на электростанциях, в металлургической , нефтехимической , нефтяной и газовой промышленности, а также в транспортной инфраструктуре (железнодорожного и авиатранспорта, метро и др.).
Пружинный привод представляет собой модульную конструкцию, которая установлена в корпусе выключателя. Такая конструкция позволяет использовать минимальное количество передающих узлов и делает выключатель компактным. Это обеспечивает стабильную, надежную и долгосрочную работу выключателя.
|
|
Условия эксплуатации
- температура окружающей среды -15°С ~ +40°С (при более низкой температуре необходимы подогревательные элементы в КРУ или помещении где находится распределительное устройство, которые должны обеспечить подогрев воздуха не ниже вышеуказанной температуры на все время работы выключателей)
- высота над уровнем моря до 1000 м
- относительная влажность окружающего воздуха при температуре +25° С: среднесуточная относительная влажность <= 95%, среднемесячная относительная влажность <= 90%;
- окружающая среда взрывобезопасная, тип атмосферы II.
- если условия эксплуатации тличаются от выше перечисленных , необходимо проконсультироваться с представителем компании Tellhow.
Технические характеристики
| № |
Наименование параметров |
Ед.измерения |
Величина |
| 1 |
Номинальное напряжение |
кВ |
20 |
| 2 |
Наибольшее рабочее напряжение |
24 |
| 3 |
Номинальное испытательное имульсное напряжение |
125 |
| 4 |
Номинальное испытательное напряжение промышленной частотой |
60 |
| 5 |
Номинальный ток |
А |
630;1250;1600 |
| 6 |
номинальный ток отключения |
кА |
20;25;31,5 |
| 7 |
Ток электродинамической стойкости |
50;63;80 |
| 8 |
Ток термической стойкости |
20;25;31,5 |
| 9 |
Число отключений номинального тока короткого замыкания |
раз |
30 |
| 10 |
Время протекания тока короткого замыкания |
сек. |
4 |
| 11 |
Номинальная рабочая последовательность |
|
О-0,3с-СО-180с-СО |
| 12 |
Механическая надежность |
число вкл. |
10000 |
| 13 |
Время собственного включения |
мс |
не более 100 |
| 14 |
Время собственного отключения |
не более 50 |
| 15 |
Время горения дуги |
не более 15 |
| 16 |
Время полного отключения |
не более 65 |
| 17 |
Номинальное напряжение вточных цепей |
В |
AC-110;220 DC-110;220 |
| 18 |
Диапазон напряжения во вторичных цепях |
% |
0,85...1,2 |
| 19 |
Мощность электромагнита включения |
Вт |
440 |
| 20 |
Мощность электромагнита отключения |
368 |
| 21 |
Межполюсное расстояние |
мм |
280 |
| 22 |
Конструктивное исполнение |
|
выкатной |
| 23 |
Срок до списания |
лет |
25 |
Габаритно-установочные размеры
- Выдвижной выключатель 630-1600А
Номинальный ток Диаметр контакта |
Ток термической стойкости |
Межфазное расстояние |
А1 |
B |
K |
H |
| 630А |
1250A |
25кА, 31,5кА |
210 |
638 |
598 |
652 |
681 |
| 35 |
49 |
- Выдвижной выключатель 1600-3150А
Номинальный ток Диаметр контакта |
Ток термической стойкости |
Межфазное расстояние |
А |
В |
К |
Н |
| 1600А, 2000А |
20кА, 25кА |
275 |
838 |
852 |
881 |
706 |
| 79 |
| 2500А, 3150А |
20кА, 25кА |
785 |
| 109 |
- Стационарный выключатель 630-1600А
| Номинальный ток |
Ток термической стойкости |
Р |
А1 |
А2 |
А3 |
К |
| 630А, 1250А |
20кА, 25кА |
210 |
520 |
275 |
20 |
588 |
| 275 |
650 |
275 |
40 |
788 |
- Стационарный выключатель 1600-3150А
| Размеры: мм |
| Номинальный ток |
Ток термической стойкости |
Р |
А1 |
А2 |
А3 |
К |
Н |
| 1600А, 2000А |
20кА, 25кА |
275 |
650 |
720 |
40 |
788 |
643 |
| 2500А |
20кА, 25кА |
722 |
| 3150 |
25кА |
722 |
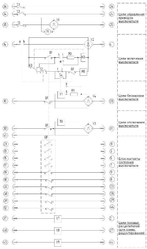
Схема электрическая принципиальная выключателя TZN3-24
Выдвижной выключатель
| HQ |
электромагнит включения |
| TQ |
электромагнит отключения |
| Y1 |
электромагнит блокировки включения |
| M |
двигатель взвода пружины |
| QF |
блок-контакты выключателя |
| V1~V4 |
выпрямитель |
| KO |
реле блокировки от прыгания |
| S1~S3 |
микропереключатели взвода пружины |
| S4 |
конечный выключатель Y1 |
| S8 |
блок-контакты контрольного положения трэка |
| S9 |
блок-контакты рабочего положения трэка |
| RO~R1 |
резисторы |
| Y7~Y9 |
токовые расцепители фазы A,B,C |
Примечание:
- Положение элементов на схеме соответствуют состоянию выключатель "Отключен" и привод не взведен.
- Дополнительные элементы -Y1, Y7,Y8,Y9 устанавливаются по требованию заказчика, в базовой версии они отсутствуют.
- Когда Y1 не заказывается S4 необходимо зашунтировать (соединить i и j).
Стационарный выключатель
| HQ |
электромагнит включения |
| TQ |
электромагнит отключения |
| Y1 |
электромагнит блокировки включения |
| M |
двигатель взвода пружины |
| QF |
блок-контакты выключателя |
| V1~V4 |
выпрямитель |
| KO |
реле блокировки от прыгания |
| SP1~SP3 |
микропереключатели взвода пружины |
| S4 |
конечный выключатель Y1 |
| S8 |
блок-контакты контрольного положения трэка |
| S9 |
блок-контакты рабочего положения трэка |
| RO~R1 |
резисторы |
| Y7~Y9 |
токовые расцепители фазы A,B, |
Примечание:
- Положение элементов на схеме соответствуют состоянию выключатель "Отключен" и привод не взведен.
- Дополнительные элементы -Y1, Y7,Y8,Y9 устанавливаются по требованию заказчика, в базовой версии они отсутствуют.
- Когда Y1 не заказывается S4 необходимо зашунтировать (соединить i и j).
|
|
|
|
|
|